Hoogstraat 19A

1541 KW Koog aan de Zaan

€ 525.000,00 k.k.

Omschrijving

Object op zeer interessante locatie op loopafstand van NS-station Zaanse Schans waardoor u in 15minuten met de trein op Amsterdam Centraal Station of Amsterdam Sloterdijk staat. Daarnaast ligt de toeristische trekpleister de Zaanse Schans met jaarlijks ongeveer drie miljoen bezoekers op slechts vijf minuten loopafstand.

De huidige situatie is een winkel met opslagruimte op de begane grond en een woning op de eerste verdieping. De begane grond is in gebruik als opslag en de woning is verhuurd voor €10.200 per jaar exclusief gas/water/electra. Het object kan leeg opgeleverd worden.

De vergunning is inmiddels verleend

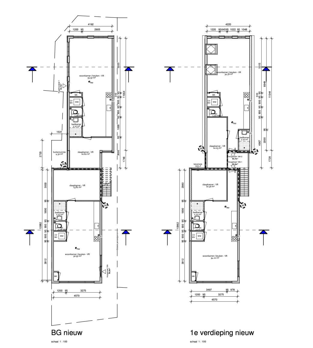
  1. Voorzijde: Appartement op de BG van 53,3m2 met kleine buitenruimte
  2. Voorzijde: Appartement 1e verdieping van 52,2 m2
  3. Achterzijde: Eengezinswoning van 91,4m2 met kleine buitenruimte

Genoemde informatie is indicatief en hier kunnen geen rechten aan worden ontleend.

Reageer

Kenmerken

Adres

Provincie

Vraagprijs

Hoogstraat 19A

1541 KW Koog aan de Zaan

Noord-Holland

€ 525.000,00

Huidige situatie

Huidige situatie

Huidige huursom

Bouwjaar

GBO in m2

Perceel in m2

Deels verhuurd

10.200

1965

200 m2

188 m2

Nieuwe situatie

Soort ontwikkeling

GBO in m2

Perceel in m2

Woning

250 m2

188 m2